Skip to main content

Kenny and Co Constructions House Plans

Established in 1990, over 30 years of experience.

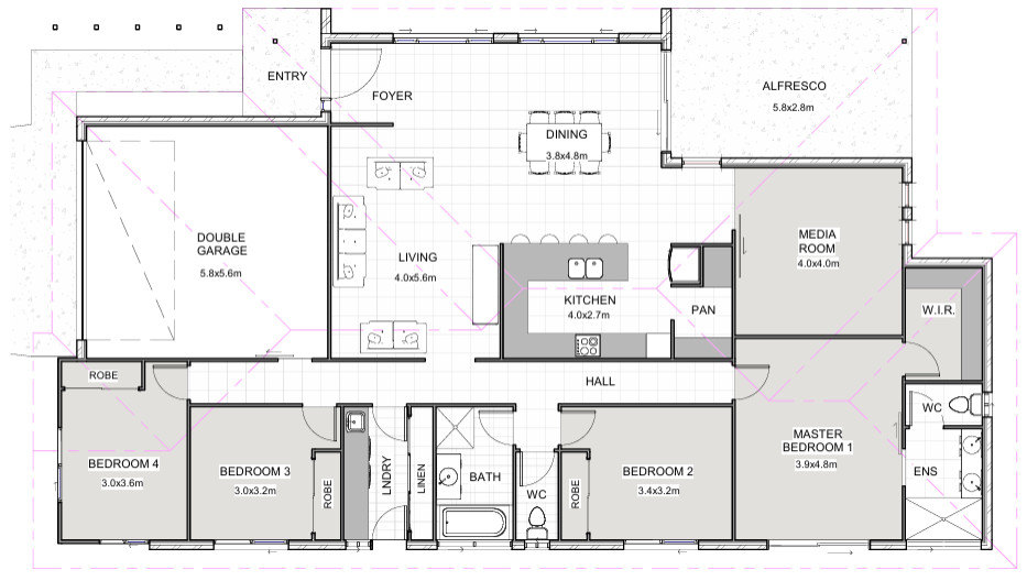
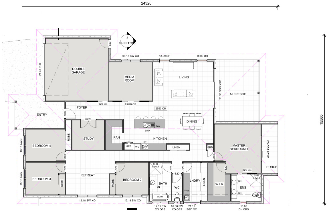
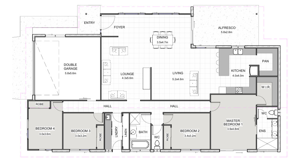
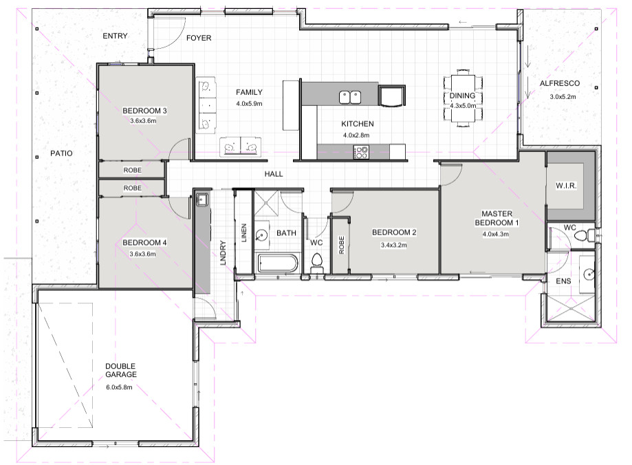
Boston Build


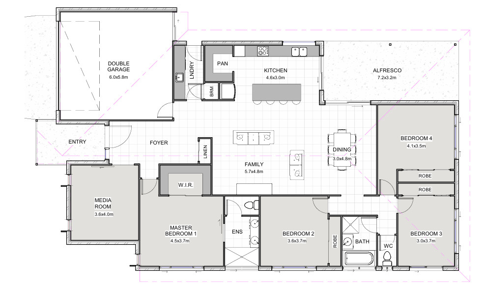
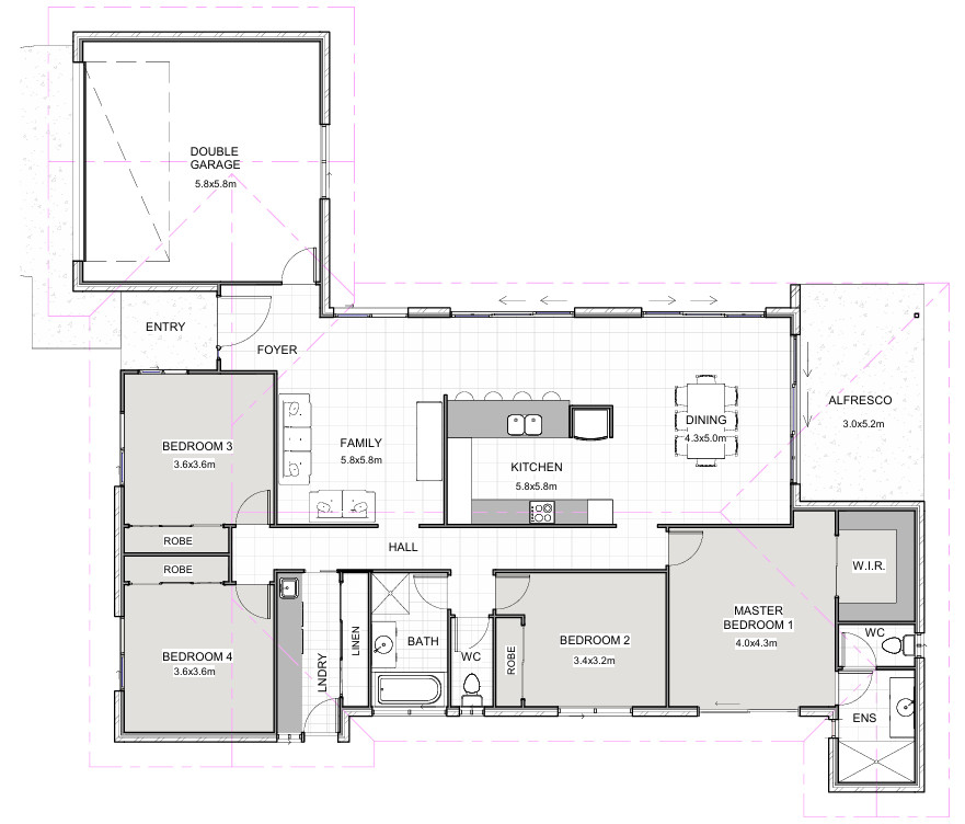
Harrison Build

With over three decades of experience in the construction industry, we strive to deliver the best results, bringing your dream home to life. Contact our friendly team today to find out more about this build